Quadrilocale in vendita

Stra, Via Fossolovara
€ 200.000
4 locali 4 locali
137 Mq 137 Mq
2 bagni 2 bagni

Quadrilocale in vendita

Stra, Via Fossolovara

Descrizione annuncio

STRA

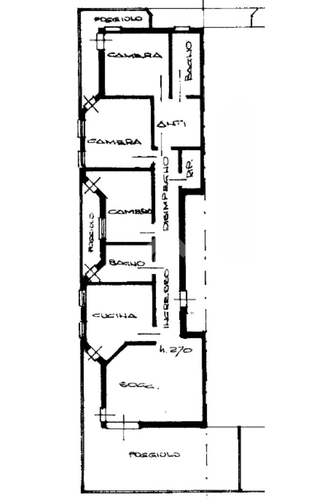
Cosa sapere sull’immobile? Proponiamo in vendita la NUDA PROPRIETA’ di un quadrilocale di pregio con terrazzone abitabile, sito al piano secondo di una palazzina nel cuore del paese.

L’immobile ci accoglie in un ampio ingresso, il quale ci permette di accedere ai numerosi spazi di cui vanta la soluzione; si parte dall’elegante soggiorno, la cui peculiarità è l’affaccio sul terrazzo di oltre 35 mq esposto ad ovest, ideale da sfruttare per vivere momenti di convivialità nelle belle giornate. A seguire, troviamo la cucina separata ed abitabile, caratterizzata da molteplici punti luce e dalla possibilità di accedere anch’essa alla terrazza, ed il primo bagno con box doccia dotato di poggiolo.

Il disimpegno, dal quale si accede ad un comodo ripostiglio, ci conduce poi al reparto notte in cui troviamo una camera singola, una matrimoniale, ed un’ulteriore camera padronale che si potrebbe definire una vera e propria suite, essendo impreziosita dalla generosa cabina armadio dotata di capienti guardaroba e dal bagno finestrato con vasca. Tutte e tre le camere hanno l’uscita sui vari poggioli.

Punti di forza della soluzione, oltre ai numerosi ed ampi spazi, sono sicuramente i numerosi terrazzi che, grazie alle varie porte finestre, donano luminosità all’ambiente e le finiture di pregio che la caratterizzano.

La dotazione comprende anche una cantina di proprietà ed un garage doppio, entrambi al piano interrato e collegati con l’ascensore.

Ulteriori informazioni? L’edificio è stato costruito nel 1984 ed è dotato di ascensore. Il riscaldamento è autonomo e la caldaia risale al 2013; sono presenti 2 split dell’aria condizionata, zanzariere nella zona giorno e tende da sole esterne.

Cosa sapere sulla zona? L’immobile si trova nel pieno centro di Stra, e gode quindi della vicinanza di tutti i servizi della zona raggiungibili a piedi (ufficio postale, bar, negozi, ristoranti, pub, mercato, uffici comunali, chiesa, parco etc…) e della vivacità tipica del centro. Verde pubblico e parcheggi vicini.

Mostra tutto

Nelle vicinanze

Trasporto pubblico Trasporto pubblico
Stra Capolinea (via Fossolovara)
Stra Capolinea (via Fossolovara)
80 m
Stra Centro
Stra Centro
210 m
Ricariche auto elettriche Ricariche auto elettriche
Piazza Guglielmo Marconi
2,8 Km
Scuole Scuole
Scuole
630 m
Scuola Secondaria di I° grado "Alcide De Gasperi"
2,6 Km
Scuola Elementare Statale "Guglielmo Marconi"
2,7 Km
Ex Scuola Elementare "Leonardo da Vinci"
2,7 Km
Scuola Primaria "Anna Frank"
3,0 Km
Farmacia Farmacia
Farmacia Villa Pisani
200 m
Farmacia
1,4 Km
Farmacia Perin
2,1 Km
Farmacia
2,4 Km
Supermercati Supermercati
Interspar
1,9 Km
Eurospar
2,4 Km
Alì Tombelle
2,9 Km
Negozi Negozi
Panificio Cacco Silvio
2,4 Km
Spiga d'Oro
2,5 Km
Grano D'Oro di Favaro Carlo
2,5 Km
Market
2,5 Km
Bar Bar
Bar
1,7 Km
Bar Birillo
2,4 Km
Ristoranti Ristoranti
Ristorante "Da Marziano"
810 m
Pizzeria Ermes
890 m
La Casaccia da Bacco
1,1 Km
Dakota
1,2 Km
Strano ma Vero
1,7 Km
Mostra tutto

Caratteristiche

Rif.:
61166764
Piano:
2 di 4 con ascensore (Piano medio)
Box:
1
Balconi:
2
Terrazzi:
1
Camere da letto:
3
Mostra tutto
Prezzo Prezzo
€ 200.000
Rata mutuo Rata mutuo
€ 943 / mese
Spese annue Spese annue
€ 1.200
Proponi il tuo prezzoProponi il tuo prezzo

Classe Energetica

E
E
E
E
E
E
E
E
E
EP globale non rinnovabile:
132.36 kW h/m² anno
EP globale rinnovabile:
0.00 kW h/m² anno
EP invernale del fabbricato:
EP estiva del fabbricato:
Anno di costruzione:
1984
Riscaldamento:
Autonomo
Tipo impianto:
A radiatori
Tipo alimentazione:
Altro

Ti interessa visionare l'immobile?

Fissa un appuntamento  Fissa un appuntamento

Richiedi informazioni

Clicca su Leggi per aprire l'informativa
* Questi campi sono obbligatori

Calcola il tuo mutuo

Semplice e senza impegno
Anticipo

( % )
Mutuo

( % )

pochi semplici passi

inserisci i tuoi dati
Questionario completato
Grazie per aver richiesto un appuntamento senza impegno con un nostro Consulente del Credito e Assicurativo.

Hai inserito correttamente tutti i dati necessari e a breve riceverai una e-mail con un link da convalidare per inviare i tuoi dati.
Affiliato
Adea Srl
Via Roma, 137 35027 Noventa Padovana (PD)

Il nostro staff


  • Alessandro Berto
    Affiliato

  • Giada Contin
    Coordinatrice

  • Ilaria Tommasini
    Responsabile
Via Roma, 137 35027 Noventa Padovana (PD)
Zona: Noventa Padovana-Noventana-Oltrebrenta-Stra-San Pietro-Paluello
Mostra su mappa
Affiliato
Adea Srl
Via Roma, 137 35027 Noventa Padovana (PD)

2026 Tecnocasa Franchising S.p.A. - P. IVA 08365160152 - Via Monte Bianco 60/A 20089 Rozzano (MI). Ogni agenzia ha un proprio titolare ed è autonoma. Privacy policy | Policy utilizzo | Cookie policy