Trilocale in vendita

Stra, Via Capeleo
€ 245.000
3 locali 3 locali
140 Mq 140 Mq
2 bagni 2 bagni

Trilocale in vendita

Stra, Via Capeleo

Descrizione annuncio

IL PROGETTO

Con immenso piacere, vi portiamo alla scoperta del nuovo progetto residenziale che unisce armoniosamente il comfort urbano e la tranquillità della natura. Situata a pochi passi dal centro Paese, questa nuova soluzione offrirà un’esperienza abitativa esclusiva in una zona verde ed al contempo pregiata, contornata da villette unifamiliari: vivere circondati dalla natura senza rinunciare alla comodità della vita in città. Ideale per famiglie e giovani coppie che non vogliono rinunciare ad uno stile di vita moderno e funzionale, assaporando l’essenza del contemporaneo in cui design ed eleganza si incontrano.
L’edificio sarà composto da 9 unità abitative progettate per rispondere ad ogni tipo di esigenza, ognuna delle quali vedrà ambienti concepiti per ottimizzare lo spazio e garantire comfort, valorizzate dall’opportunità di vivere il relax all’aperto grazie ai suoi ampi giardini e terrazzi vivibili, perfetti per momenti di condivisione e benessere.

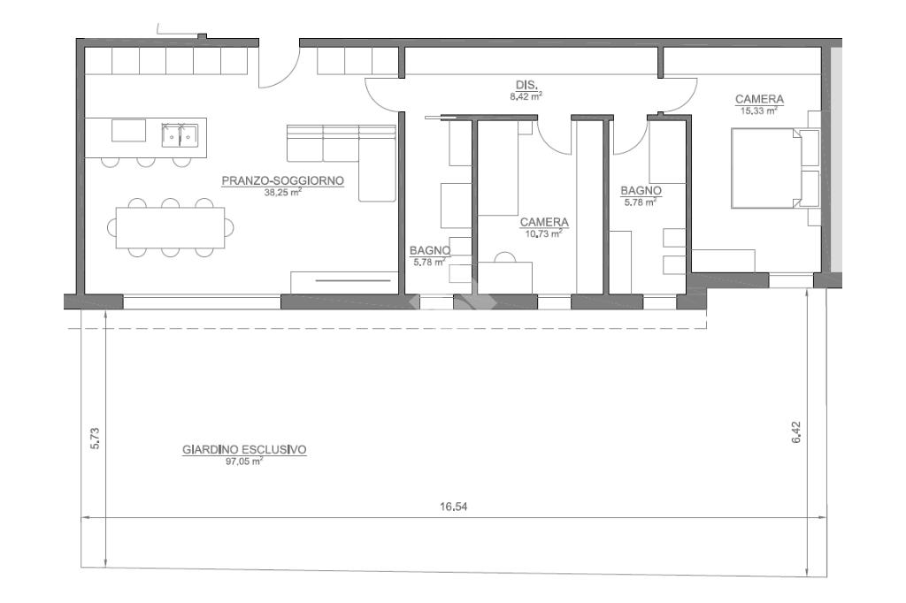
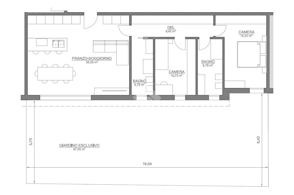
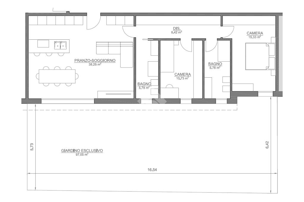
UNITA’ 3

La soluzione proposta è un trilocale al piano terra con giardino privato.

L’immobile è caratterizzato da un’ampia zona living di quasi 40 mq, un generoso disimpegno in cui adibire armadiature a muro, due camere da letto e due bagni.

Completa la dotazione un garage singolo al piano terra, oltre ad un posto auto ad uso esclusivo.

L'immobile sarà dotato di riscaldamento a pavimento in pompa di calore, pannelli fotovoltaici, impianto di ventilazione meccanica controllata, impianto di raffrescamento, tapparelle motorizzate e serramenti in PVC.

Possibilità di acquisto di un secondo posto auto.

Per maggiori informazioni contattaci ai numeri: 049.7309390 - 331.1434292 oppure passa a trovarci in agenzia.

Mostra tutto

Nelle vicinanze

Trasporto pubblico Trasporto pubblico
Stra via Capeleo
Stra via Capeleo
100 m
Stra Capolinea (via Fossolovara)
Stra Capolinea (via Fossolovara)
430 m
Scuole Scuole
Scuole
410 m
Scuola Primaria "Anna Frank"
2,8 Km
Scuola Secondaria di I° grado "Alcide De Gasperi"
3,0 Km
Farmacia Farmacia
Farmacia Villa Pisani
570 m
Farmacia
1,8 Km
Farmacia Perin
1,9 Km
Farmacia Balbinot Dott.Ssa Gloria
2,7 Km
Farmacia
2,8 Km
Supermercati Supermercati
Interspar
1,6 Km
Eurospar
2,7 Km
Alì Tombelle
2,9 Km
Negozi Negozi
Grano D'Oro di Favaro Carlo
2,1 Km
Spiga d'Oro
2,5 Km
Panificio Cacco Silvio
2,8 Km
Market
2,9 Km
Bar Bar
Bar
1,4 Km
Bar Birillo
2,5 Km
Ristoranti Ristoranti
Ristorante "Da Marziano"
800 m
Dakota
820 m
Pizzeria Ermes
1,0 Km
La Casaccia da Bacco
1,2 Km
Strano ma Vero
1,5 Km
Mostra tutto

Caratteristiche

Rif.:
61128023
Piano:
Terra di 2
Totale piani:
2
Box:
1
Posti auto:
1
Camere da letto:
2
Mostra tutto
Prezzo Prezzo
€ 245.000
Rata mutuo Rata mutuo
€ 1.155 / mese
Spese annue Spese annue
€ 0
Proponi il tuo prezzoProponi il tuo prezzo

Classe Energetica

A4
A4
A4
A4
A4
A4
A4
A4
A4
EP globale non rinnovabile:
1.05 kW h/m² anno
EP globale rinnovabile:
0.00 kW h/m² anno
EP invernale del fabbricato:
EP estiva del fabbricato:
Anno di costruzione:
2026
Riscaldamento:
Autonomo
Tipo impianto:
A pavimento
Tipo alimentazione:
Altro

Ti interessa visionare l'immobile?

Fissa un appuntamento  Fissa un appuntamento

Richiedi informazioni

Clicca su Leggi per aprire l'informativa
* Questi campi sono obbligatori

Calcola il tuo mutuo

Semplice e senza impegno
Anticipo

( % )
Mutuo

( % )

pochi semplici passi

inserisci i tuoi dati
Questionario completato
Grazie per aver richiesto un appuntamento senza impegno con un nostro Consulente del Credito e Assicurativo.

Hai inserito correttamente tutti i dati necessari e a breve riceverai una e-mail con un link da convalidare per inviare i tuoi dati.
Affiliato
Adea Srl
Via Roma, 137 35027 Noventa Padovana (PD)

Il nostro staff


  • Alessandro Berto
    Affiliato

  • Giada Contin
    Coordinatrice

  • Ilaria Tommasini
    Responsabile
Via Roma, 137 35027 Noventa Padovana (PD)
Zona: Noventa Padovana-Noventana-Oltrebrenta-Stra-San Pietro-Paluello
Mostra su mappa
Affiliato
Adea Srl
Via Roma, 137 35027 Noventa Padovana (PD)

2025 Tecnocasa Franchising S.p.A. - P. IVA 08365160152 - Via Monte Bianco 60/A 20089 Rozzano (MI). Ogni agenzia ha un proprio titolare ed è autonoma. Privacy policy | Policy utilizzo | Cookie policy